11
$439,108.89 Sale
Listed 2 hours ago
54 Arbour Lake Court NW
· 2
· 1.5
· 1
· 814
Key Facts
Key facts for 54 Arbour Lake Court NW
Property Type
Townhome, Row / Townhouse
Parking
Garage: Yes, 1 parking
MLS #
A2261653
Size
814 sqft
Basement
None
Listed on
-
Lot size
-
Tax
-
Days on Market
-
Year Built
2026
Maintenance Fee
$148.41/mo
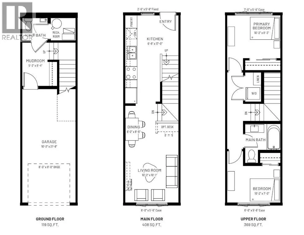
Description
Step into this beautifully designed, newly built 3-level townhome by Cantiro—offering the perfect blend of comfort, style, and nature. Located in the sought-after lake community of Arbour Lake, this 2-bedroom, 1.5-bath home backs directly onto peaceful green space and showcases expansive triple-pane...d windows that flood each level with natural light. The entry level features a welcoming mudroom, a convenient two-piece bathroom, and access to the single attached garage with an oversized overhead door. On the main floor, enjoy a bright and open layout with spacious living and dining areas and a contemporary kitchen—ideal for everyday living and entertaining. Upstairs, you’ll find two bedrooms, a full four-piece bathroom, and upper-floor laundry for added convenience. With luxury vinyl plank flooring, quartz countertops, professionally curated interior finishes, and rough-ins for both air conditioning and a BBQ gas line, this home is move-in ready and waiting for your personal touch. Enjoy low-maintenance living with exclusive access to year-round lake amenities—all in a peaceful setting that backs onto green space. ( PLEASE note* photos are of similar models but there are not an exact replication of the home). (id:10452)
Similar Properties (No results)
Room Types
2pc Bathroom
-
Dimensions .00 Ft x .00 Ft
0 sqft
4pc Bathroom
-
Dimensions .00 Ft x .00 Ft
0 sqft
Bedroom
-
Dimensions 7.00 Ft x 10.17 Ft
71.19 sqft
Listing courtesy of: KIC Realty
This REALTOR.ca listing content is owned and licensed by REALTOR® members of The Canadian Real Estate Association.